How to Choose a Custom Home Builder in Ocean City & South Jersey Building a custom home at the Jersey Shore is …
We are Dream Builder Custom Properties, a luxury home builder serving Ocean City and all of South Jersey. Every piece of the process lives under one roof, our in-house designers, our architects, and our master carpenters, all working on the same drawings and the same details. The homes we build aren’t just a job we finish. They’re an experience your family lives through, from the first sketch to the day the keys are in your hand.
Schedule a free site consultation — we’ll be in touch within 24 hours.
No obligation. No pressure. Just honest guidance.
At DB Custom Properties, building exceptional custom homes isn’t just what we do—it’s who we are. As Ocean City, NJ’s premier custom home builder, we offer a full-service, start-to-finish approach that transforms your vision into a one-of-a-kind home designed for coastal living.
With our picture-perfect home builds, we invite you to imagine your dream home. Picture the day you move in, the new home smell, and your family smiling, ready to begin this new journey. We design the home; you create the memories.
Building a home is a significant investment and working with someone you can trust is extremely important, we don’t expect you to take our word for it, hear it first hand from our customers!
EXCELLENT Based on 6 reviews Posted on jtlplsnpTrustindex verifies that the original source of the review is Google. Dream Builders perform quality work and have very reasonable prices. I will definitely hire them again if I have another home remodel.Posted on Zachary LeathersTrustindex verifies that the original source of the review is Google. Dream Builders did a phenomenal job with my cottage renovation. They put in a spiral staircase and remodeled both my first and second floors. They were always available to answer questions and handled the typical issues that come up with home improvement very well. They treated me, and my place with the upmost respect. Highly recommend!Posted on Kiara VegaTrustindex verifies that the original source of the review is Google. Dream Builder Custom Properties has been a core part of building our dream home here in Ocean City. They were nothing but patient and took all the care when crafting our design with architects and from the framing to the final custom finish work, they made our home feel like a truly built custom home. If you’re looking for a custom home builder in south Jersey that can build your forever home, I’d recommend these guys and the dream team 100%. Thx so much!!! -kikiPosted on Abdul JalilTrustindex verifies that the original source of the review is Google. NJ Dream Builders really stand by the name of their company. They really turned my dream into reality. The property was in really bad shape to say the least. They really turned a nightmare into a dream home. I and my family cannot thank NJ Dream Builders enough. I look forward to working with them here on out ‼️Posted on Thomas DaddinoTrustindex verifies that the original source of the review is Google. Would highly recommend NJ DREAM BUILDERS for any major custom renovations. From start to finish.. On time , attention to detail, professional crew. You get what you pay for, and they are worth every dollar !!Posted on James ShogunTrustindex verifies that the original source of the review is Google. We've used NJ Dream Builders for multiple projects and will continue to use them. Professional, on time delivery, perfect communication. We couldn't be happier, highly recommended!!!
Browse our signature home designs and find the perfect plan for your vision! Customize it and make it to your liking and start making your dream a reality today!
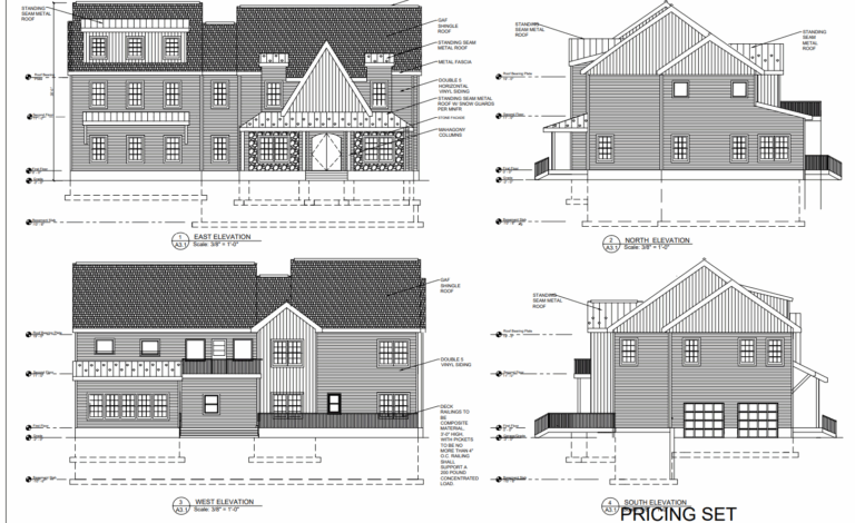
A Modern 3200 SQF Home With A Timeless Design, Perfect As A Forever Home
Discover our signature home design, Timber Pine. A home build with modern warm features, perfect for a larger family.
Discover our signature home design, Oak & Stone. A home built with care and personality.
Discover our signature home design, Scandinavian. A home that features a modern minimalist appearance.
Whether you have a lot ready, you’re considering a tear-down, or just beginning to explore — we’re here to help. Schedule a free site consultation and let’s talk about bringing your vision to life.
Our project manager will reach out within 24 hours.
Home Builders At Heart, Stay Up To Date With Our Tips, Guides and New Designs Posted Monthly
How to Choose a Custom Home Builder in Ocean City & South Jersey Building a custom home at the Jersey Shore is …
Coming Soon to Marmora: A 5,700 Sq. Ft. Masterpiece by Dream Builder Custom Properties New Year, New Massive Project. At Dream Builder …
Building a New Home in Ocean City, NJ? Here’s What Makes This Town Unique If you’ve been dreaming of building a custom …
Building a Home in New Jersey? Here’s What You Should Know There’s nothing quite like watching your dream home come to life …
Didn’t see your town listed? Give us a call below and find out if we can build at your location!